


















































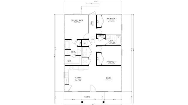
The Callaway is one of our single-story floorplans featured at Oakmont Place in Theodore, Alabama. This charming 3-bedroom, 2-bathroom home has 1,205 square feet of thoughtfully designed living space. As you enter from a welcoming front porch, you will notice this cozy residence maximizes functionality and comfort. The Callaway features an open-concept layout that seamlessly blends the eat-in kitchen and living area, perfect for modern living. The kitchen offers shaker-style cabinetry and stainless-steel appliances. Continuing into the home, you will pass a laundry closet and opposite are two bedrooms that provide flexibility for a home office or guest room. Situated between the two bedrooms is a linen closet and a shared bathroom with a shower/tub combination. The primary bedroom is to the opposite corner of the home and has access to a private ensuite w...
Stay informed with Livabl updates on new community details and available inventory.