




























































Get additional information including price lists and floor plans.
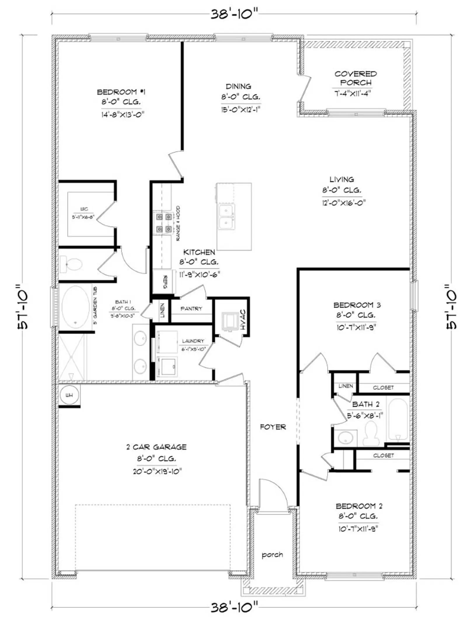
The Aria is a single-story floorplan at our Valor Ridge community in Mobile, Alabama. Inside this 3-bedroom, 2-bathroom home, youll find over 1,600 square feet of comfortable living. Entertaining in an Aria is a breeze, as this popular home features a living and dining in the heart of the home, with covered porch just steps away in your backyard. The spacious kitchen features stainless steel appliances, a convenient island with granite countertops and a walk-in pantry with ample storage. The primary bedroom located in the rear of the home has its own attached bathroom that features a walk-in closet and all the space you need to get ready in the morning. Sharing a sink isnt a worry with the double vanity. In every bedroom youll have carpeted floors and a closet in each room. Whether these rooms become bedrooms, office spaces, or other bonus rooms, there i...
Stay informed with Livabl updates on new community details and available inventory.