









































































Get additional information including price lists and floor plans.
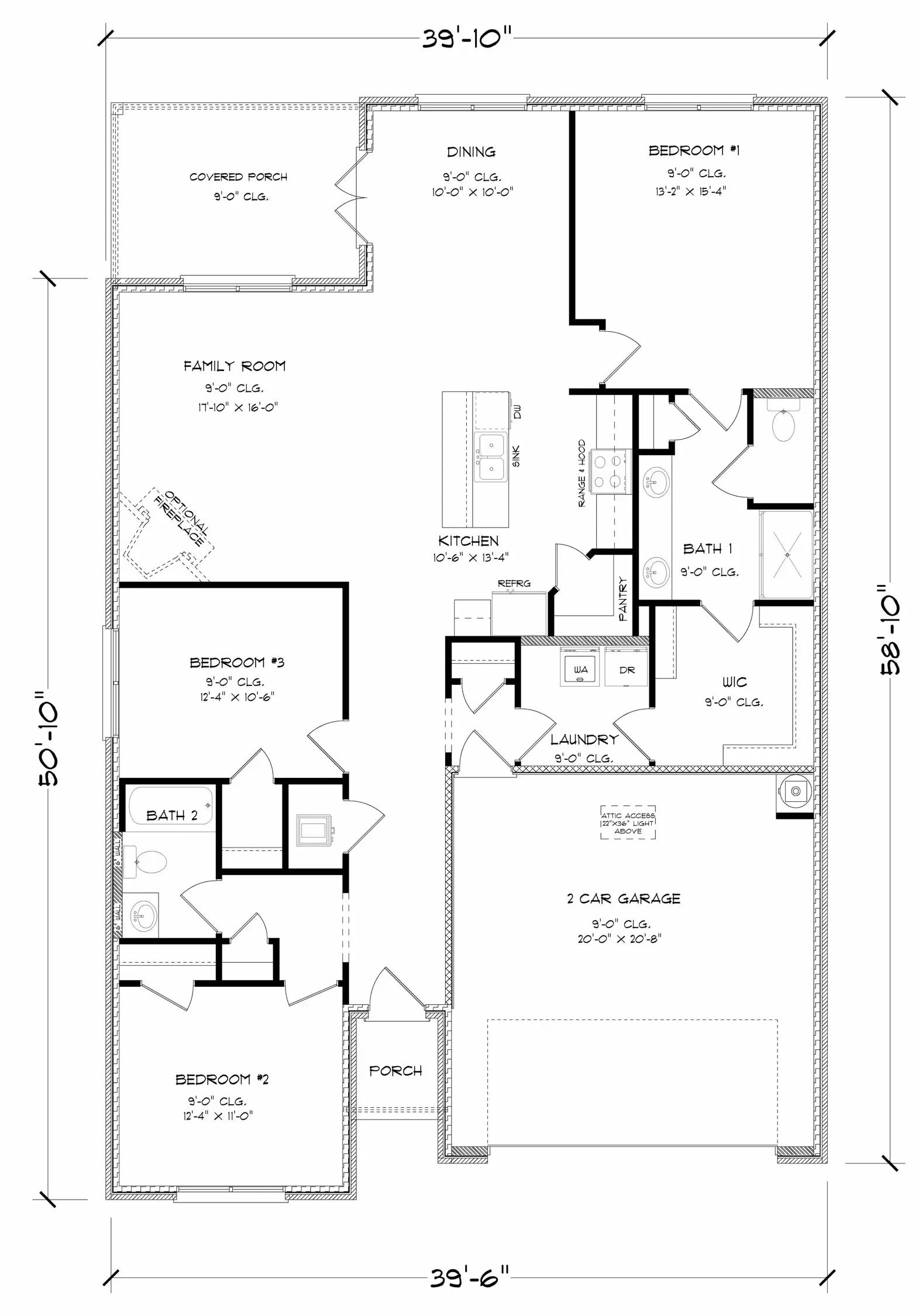
The Bristol floorplan offers three bedrooms, two bathrooms and a two-car garage with over 1,600 square feet of enjoyable living space. Entering the home, a short hall to one side leads to a bedroom, linen closet and a full bathroom with vanity and shower/tub combination. As you continue through the foyer there is another bedroom and adjacent to it is another short hall with a hall closet, access to the garage and entry to the laundry room. The laundry room offers a door into the primary bedrooms walk-in closet which leads into the primary bathroom. From the foyer as you enter the family room, it is open to the kitchen which offers stainless-steel appliances, shaker-style cabinetry, an island with granite countertops and an overhang that offers additional seating and a walk-in pantry. The Dining room is right off the kitchen and allows access to the covered ...
Stay informed with Livabl updates on new community details and available inventory.