
































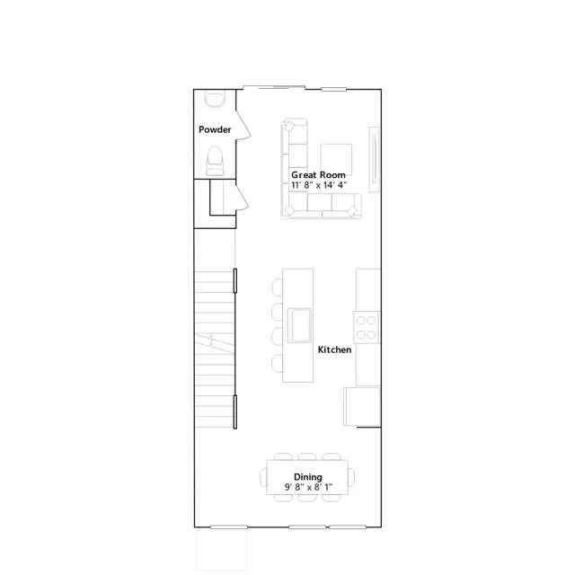
The first floor of this three-story home features a recreation room with a convenient powder room. The second level is host to an open concept floorplan that seamlessly connects a Great Room, dining area and modern kitchen. On the top floor, there are two bedrooms, including the luxurious owners suite, which offers residents a restful bedroom, spa-inspired bathroom and generous walk-in closet. A full bathroom is easily accessible from the secondary bedroom.
Stay informed with Livabl updates on new community details and available inventory.