









































Get additional information including price lists and floor plans.
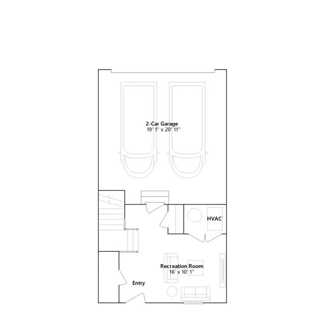
The first floor of this three-story home is host to a recreation room with an optional powder room. Upstairs, an inviting open floorplan includes the spacious Great Room, dining area and chef-inspired kitchen with a conveniently placed powder room. All bedrooms can be found on the top level, including the luxe owners suite, which features a relaxing bedroom, en-suite bathroom and generous walk-in closet.
Stay informed with Livabl updates on new community details and available inventory.