

















































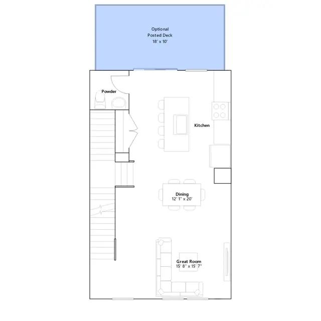
A spacious recreation room can be found on the first floor of this three-story home. The second level is host to a spacious open floorplan consisting of a Great Room, dining area and chef-inspired kitchen with access to a conveniently placed powder room. There are three bedrooms located on the top level, including the luxe owners suite featuring an en-suite bathroom and walk-in closet.
Stay informed with Livabl updates on new community details and available inventory.