

































































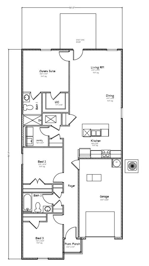
Step into the Delilah, one of our beautiful floorplans featured at our Heritage Lake Community. The Delilah offers three bedrooms, two bathrooms, and over 1,200 square feet of comfortable living space, along with a one-car garage. As you enter the home, youll find two bedrooms positioned on one side, with a guest bathroom conveniently located between them. Down the hall, youll have access to the garage and a separate laundry area. A standout feature of the Delilah is its open-concept kitchen and great room, designed for modern living and ideal for entertaining. The kitchen features stylish shaker-style cabinetry, granite countertops, stainless steel appliances, and a spacious pantry. The expansive great room seamlessly flows into the covered porch, providing the perfect spot to relax or entertain guests. The primary bedroom suite is your private retreat, o...
Stay informed with Livabl updates on new community details and available inventory.