hero-image-0
hero-image-1

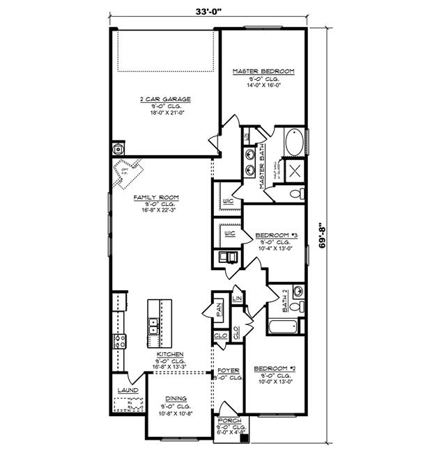
229 Nelly St

Hammock Bay by Express Homes
Sold
Sold
3
2
1,796
229 Nelly St details
unit-banner-image
unit-banner-image
unit-banner-image
229 Nelly St is now sold.
Check out available nearby homes below.