



























































Get additional information including price lists and floor plans.
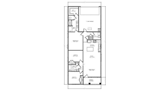
The Porter is a new home floor plan at Owls Head East in Freeport, Florida. This home is a thoughtfully designed 3-bedroom, 2-bathroom home spanning 1,487 square feet. This home combines modern features with a functional layout to create a comfortable and stylish living space. The large primary bedroom serves as a private retreat, complete with an ensuite bathroom that boasts a garden tub, a separate shower, and a spacious walk-in closet. The two additional bedrooms offer flexibility for family, guests, or a home office. The kitchen is the heart of the home, featuring a center island, white shaker cabinets with modern hardware, and sleek granite countertops, making it both practical and elegant. The open-concept layout seamlessly connects the kitchen to the living and dining areas, ideal for entertaining or everyday living. Easily maintained EVP flooring exten...
Stay informed with Livabl updates on new community details and available inventory.