

























































Get additional information including price lists and floor plans.
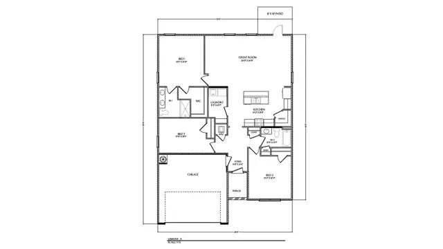
Welcome to the Lismore, a new home floor plan in Phase III of Ashton Park in Freeport, Florida. As you enter this home you are immediately struck by its clean lines and thoughtful design. The foyer opens to a bright and airy space, with two secondary bedrooms and a full bathroom tucked off to one side. These rooms are perfectly sized for guests, children, or even a home office, with each offering plenty of closet space and easy access to the shared bath. This home features modern finishes and engineered Vinyl plank flooring throughout the home except for the bedrooms where youll find upgraded carpet. Continuing into the heart of the home, you will find an open concept living area. Here, the kitchen truly shines with its granite countertops, stainless steel appliances, and an island with a breakfast bar that creates the perfect spot for casual dining or entert...
Stay informed with Livabl updates on new community details and available inventory.