






































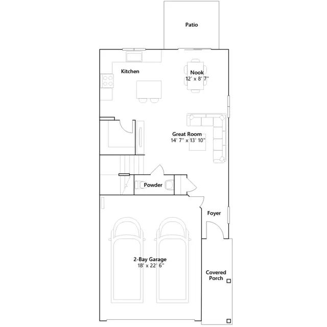
The first floor of this two-story home is host to an inviting open-concept floorplan that blends the Great Room, kitchen and nook areas, with convenient access to an outdoor patio. Upstairs, there are three bedrooms, including the expansive owners suite which features an en-suite bathroom and walk-in closet for optimal privacy and comfort.
Stay informed with Livabl updates on new community details and available inventory.