
















Get additional information including price lists and floor plans.


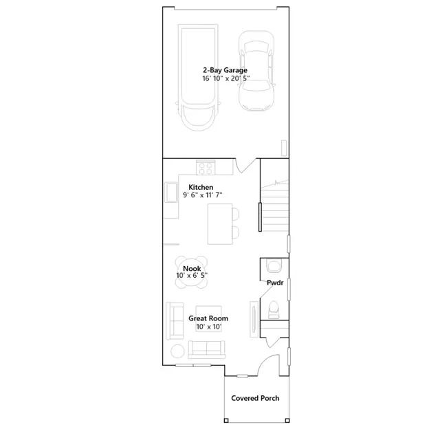
The first floor of this two-story home shares an open layout between the kitchen, nook and Great Room for easy entertaining with convenient access to a powder room. Upstairs are two secondary bedrooms, ideal for residents and overnight guests, surrounding a versatile loft that can serve as an additional shared living space or office, depending on the household's needs. An owner's suite is at the rear of the second floor and enjoys an en-suite bathroom and a walk-in closet.
Stay informed with Livabl updates on new community details and available inventory.