


















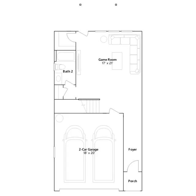
This new three-story townhome showcases a gracious design. The lower level features a versatile game room ideal for entertainment and a desirable two-car garage. Upstairs is an open floorplan among the spacious family room, a well-equipped kitchen and breakfast room with access to a large deck. All three bedrooms, including the private owners suite with a full-sized bathroom, are ideally situated on the top floor to provide restful retreats.
Stay informed with Livabl updates on new community details and available inventory.