







































































Get additional information including price lists and floor plans.
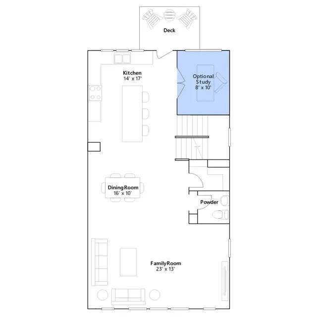
This new townhome presents three stories of modern living space. On the lower level is a spacious game room made for loud entertainment and gatherings, while upstairs is the open-concept main living area. It includes a sprawling family room bathed in natural light, an intimate dining room and a chef-ready kitchen, plus a deck for outdoor moments. On the top level are two secondary bedrooms and the serene owners suite to provide peaceful retreats.
Stay informed with Livabl updates on new community details and available inventory.