hero-image-0

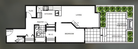
202 Plan

Cedar54
Sold
Sold
1
1
From 638
unit-banner-imageunit-banner-imageunit-banner-image
202 Plan details
202 Plan is now sold.
Check out available nearby plans below.