hero-image-0
Atmosphere - Phase 1
For sale
For sale
Pricing coming soon
1
1
From 495
unit-banner-imageunit-banner-imageunit-banner-image
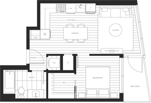
E1B1 Plan details

Contact sales center

Get additional information including price lists and floor plans.

Interested? Receive updates

Stay informed with Livabl updates on new community details and available inventory.