







































































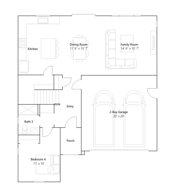
This two-story home showcases an open floorplan on the first level, where the family room, kitchen and dining room flow into one another seamlessly. Sliding glass doors lead to the outdoor space. A secondary bedroom is located close to a full bathroom, ideal for overnight guests or a home office. Upstairs is three more bedrooms, including the luxurious owners suite with a restful bedroom, an en-suite bathroom and a spacious walk-in closet.
Stay informed with Livabl updates on new community details and available inventory.