
















Get additional information including price lists and floor plans.



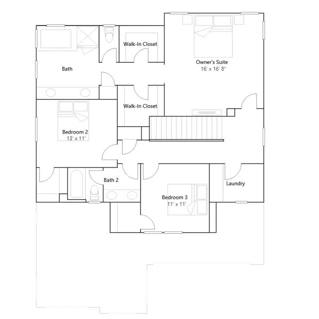
A spacious open floorplan is found on the first level of this two-story home, offering seamless flow between the family room, kitchen and dining room. Off the entry is a secondary bedroom featuring a walk-in closet, situated close to a full bathroom. Three more bedrooms are found upstairs, including the luxurious owners suite with dual walk-in closets and a spa-inspired bathroom. Both secondary bedrooms located upstairs include walk-in closets as well.
Stay informed with Livabl updates on new community details and available inventory.