hero-image-0
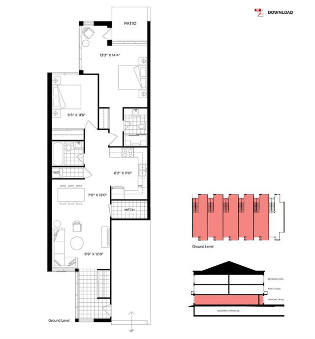
SweetLife Condos + Towns
Sold
Sold
2
2
From 1,184
unit-banner-imageunit-banner-imageunit-banner-image
Macaroon Plan details
Macaroon Plan is now sold.
Check out available nearby plans below.