hero-image-0

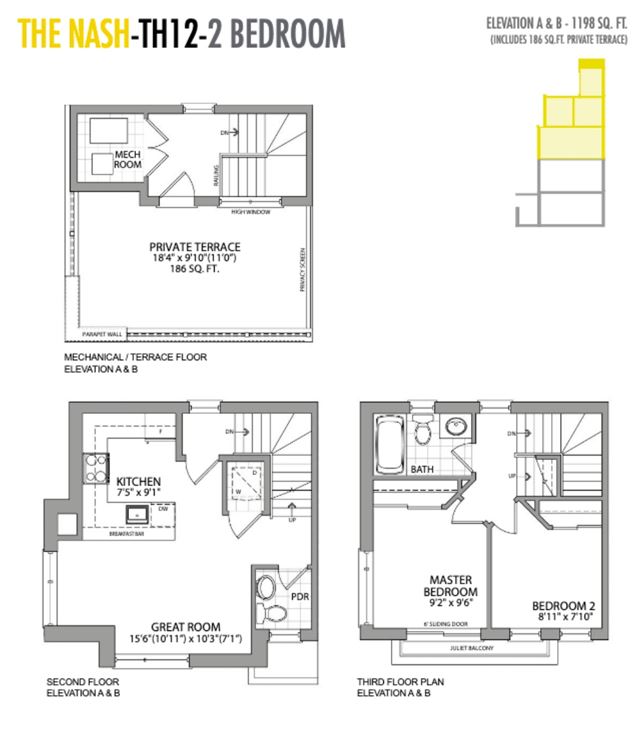
The Nash Plan

By

Ambria Homes

   |   

Presto Towns

Presto Towns
For sale
For sale
Last listed from $636,900
3
2
1
1
1,012 - 1,198
unit-banner-imageunit-banner-imageunit-banner-image
The Nash Plan details

Contact sales center

Get additional information including price lists and floor plans.

Interested? Receive updates

Stay informed with Livabl updates on new community details and available inventory.