hero-image-0
hero-image-1

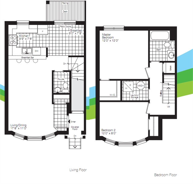
Yellowstone Plan

Nature's Path
Sold
Sold
2
1
From 1,100
unit-banner-imageunit-banner-imageunit-banner-image
Yellowstone Plan details
Yellowstone Plan is now sold.
Check out available nearby plans below.