




































































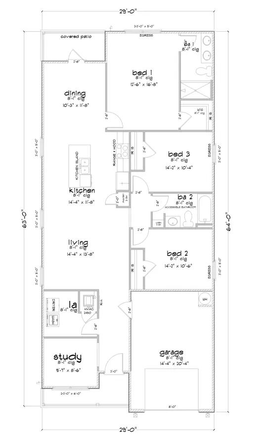
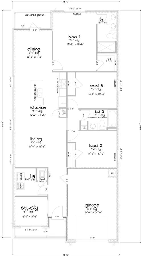
The Julia is a one-story floor plan featured in our Dogwood Estates of Summerdale. With multiple exterior options to choose from, the Julia is sure to catch your attention. This 3-bedroom, 2-bathroom home boasts 1,430 square feet of functionality for convenient and comfortable living. As you enter the foyer, you will immediately notice the high-quality details and finishes throughout. Connected off the foyer are the study, laundry room, and garage. Continue walking down the hall and you will enter the great room. The open concept blends the kitchen, living, and dining areas seamlessly, allowing natural light to illuminate the space. The kitchen is fully equipped with white shaker-style cabinets, granite countertops, a center island, stainless steel appliances, and a pantry for storage. The owners suite is generously sized and includes a walk-in closet and pr...
Stay informed with Livabl updates on new community details and available inventory.