





































































Get additional information including price lists and floor plans.
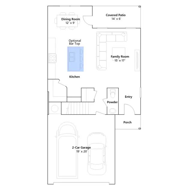
This new home presents two floors designed for seamless living and comfort. At the heart of the first floor is a welcoming family room with direct access to a multifunctional kitchen, dining area and a covered rear patio. All three bedrooms are tucked upstairs for maximum privacy and center around a versatile loft for additional living space. The owners suite is a tranquil retreat with an attached bathroom and walk-in closet.
Stay informed with Livabl updates on new community details and available inventory.