




















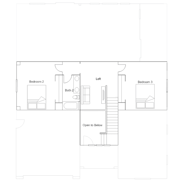
The first level of this two-story home is host to a convenient and contemporary open floorplan where the Great Room, kitchen and dining room share a footprint, helping to make multitasking a breeze. Sliding glass doors lead to the desirable covered patio. The luxurious owners suite completes the first floor, while a loft and two more bedrooms occupy the second level.