


Get additional information including price lists and floor plans.
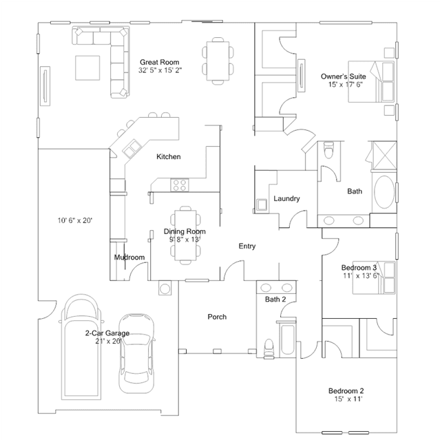
This single-level home feature a modern layout with ample room to grow. An inviting open floorplan combines the kitchen and Great Room, with a formal dining room located near the entry. Three bedrooms are tucked away to the side of the home, with the owners suite nestled into a private back corner for optimal comfort and privacy. A two-bay garage completes the home.
Stay informed with Livabl updates on new community details and available inventory.