





















































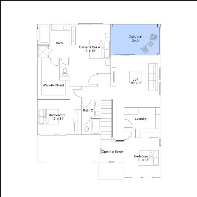
This new two-story home features a modern layout with room to grow. On the first level, an inviting open-concept layout combines the kitchen with the living and dining areas. A bedroom with an en-suite bathroom can be found off the entry. Three additional bedrooms surround a versatile loft on the second floor, with the owners suite tucked into a private corner with a private bathroom and walk-in closet.
Stay informed with Livabl updates on new community details and available inventory.