



































































Get additional information including price lists and floor plans.
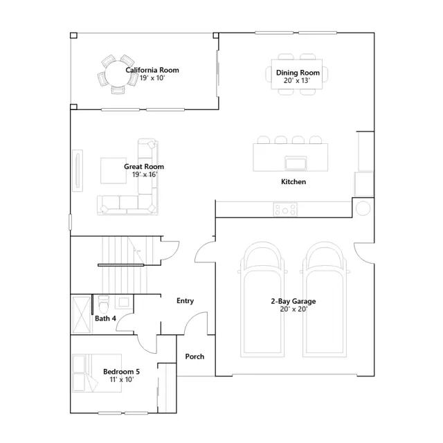
This new two-story home is host to an inviting open-concept living area with convenient outdoor access in the California Room, perfect for everyday entertaining. A bedroom and full bathroom can be found off the entry. Upstairs, three additional bedrooms surround a versatile loft, including the lavish owners suite with an en-suite bathroom and walk-in closet.
Stay informed with Livabl updates on new community details and available inventory.