
















































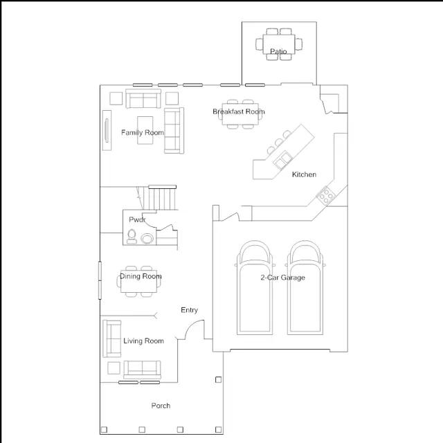
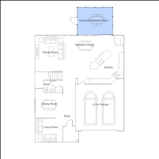
This two-story home features an open living space in the family room, kitchen and breakfast area with sliding doors that extend to the outdoor patio. Near the entryway is a cozy living room and formal dining room ready to be transformed. Upstairs is an oversized bonus room and four bedrooms.
Stay informed with Livabl updates on new community details and available inventory.