




















































































Get additional information including price lists and floor plans.
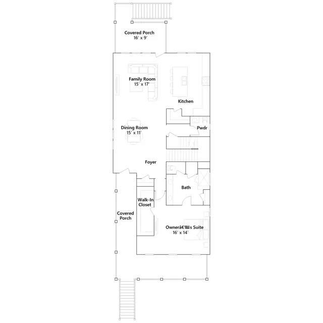
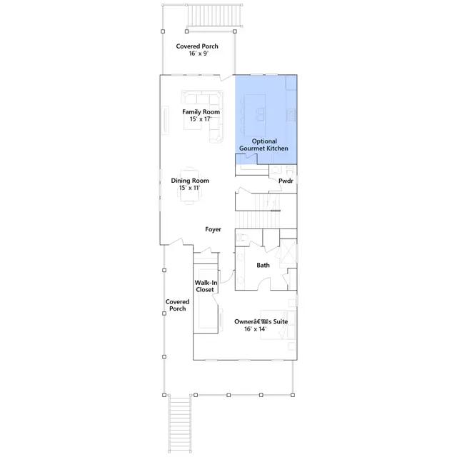
This spacious two-story home features an open layout among the dining room, kitchen and family room with access to the covered porch. In addition to the first floor is the private owners suite, comprised of a spacious bedroom, attached bathroom and split walk-in closet. Upstairs is a sprawling loft surrounded by three bedrooms, two of which include a private bathroom for enhanced livability.
Stay informed with Livabl updates on new community details and available inventory.