hero-image-0
Concord Gardens Park Estates
Sold
Sold
1
1
1
From 547
unit-banner-imageunit-banner-imageunit-banner-image
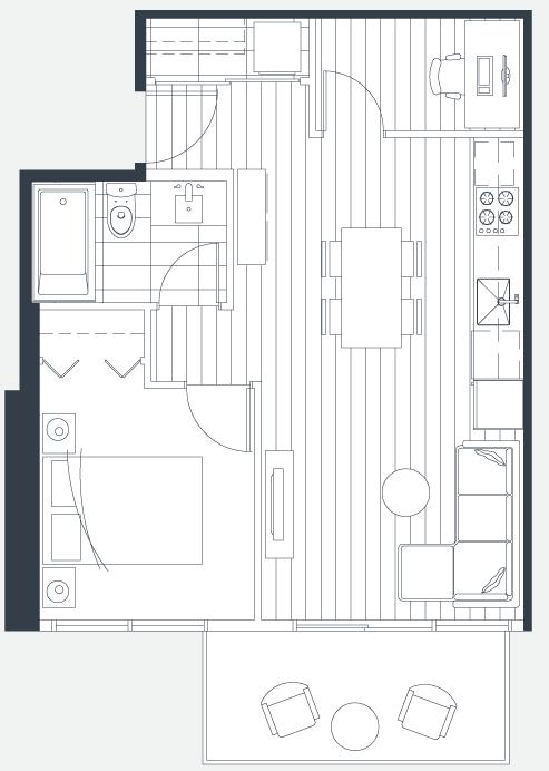
A11 Plan details
A11 Plan is now sold.
Check out available nearby plans below.