






















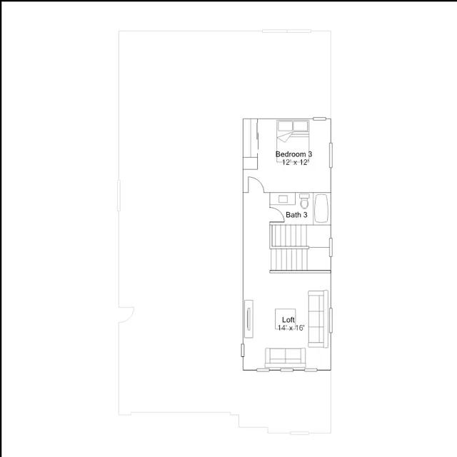
The first floor of this new two-story home is host to an open-concept floorplan shared between the kitchen, living and dining areas, and two bedrooms are tucked away to the side of the home for improved comfort and privacy, including the luxurious owners suite with a private bathroom. On the second floor, a versatile loft offers a convenient shared living area near an additional secondary bedroom.
Stay informed with Livabl updates on new community details and available inventory.