hero-image-0
Galerie
Sold
Sold
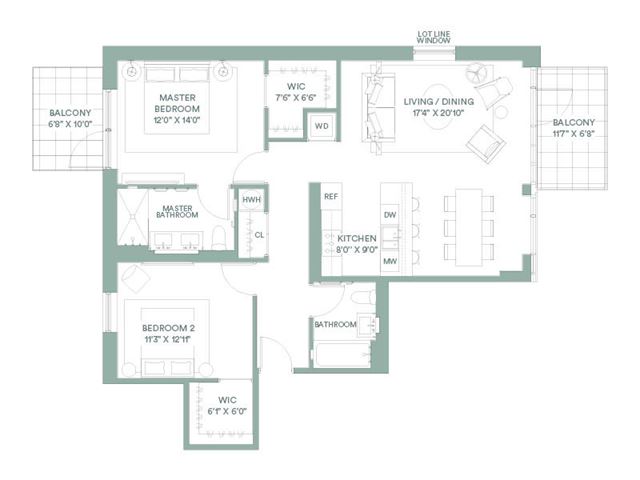
2
2
1,223
Unit 1008 details
Unit 1008 is now sold.
Check out available nearby condos below.