





















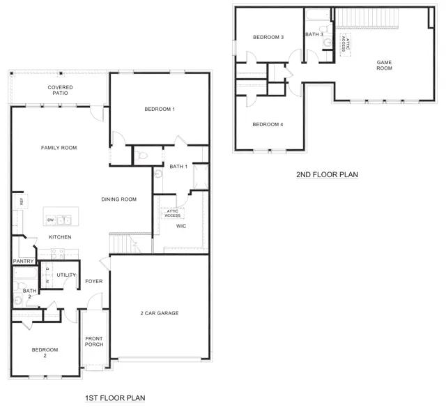
Nestled off of FM 982 in Princeton, TX you can find our Modern Farmhouse neighborhood called Ranger Crossing, which is home to our X40O Ozark plan. This large stunning home is always available for you tour as it's one of our Model homes. Standing tall at 2454 square feet, this 4 bedroom, 3 bathroom also comes equipped with a game room upstairs to help separate the home. Bosting one of the larger kitchens offered in the neighborhood, the hard surface countertops and the center island are a no brainer when it comes to the cook in the family. If you are ready to make this plan your dream home, reach out to us today to make it a reality! Photos shown here may not depict the specified home and features. Elevations, exterior/ interior colors, options, available upgrades that require an additional charge, and standard features will vary in each community and sub...