



































































Get additional information including price lists and floor plans.
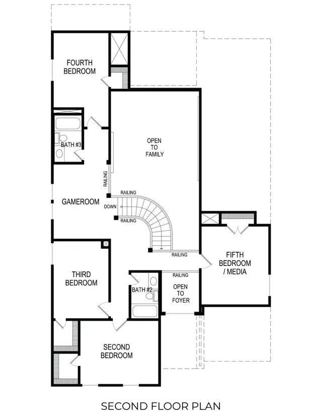
Explore the Cooper F Floor Plan New Home Design Available in Lucas, DFW The Cooper F offers 5 bedrooms, 3 bathrooms, and 3200 sq. ft. of thoughtfully designed living space that adapts to your needs. From everyday routines to memorable moments, this layout is built to support how you live with comfort, functionality, and style in mind. Features like a private study and convenient powder room, covered patio perfect for outdoor relaxation, upstairs game room, and optional media room create a flexible foundation for personalization and convenience. Whether you're relaxing, hosting, working from home, or simply enjoying daily life, Cooper F provides the right spaces in the right places. Available in select First Texas Homes communities across DFW, this plan can be tailored with a variety of structural options and design finishes. Explore Princeton Cooper F today...
Stay informed with Livabl updates on new community details and available inventory.