



























































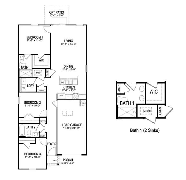
The Devon floorplan is a thoughtfully designed one-story home that offers a perfect blend of modern amenities and functional living space. This layout includes three spacious bedrooms and two well-appointed bathrooms, providing comfort and privacy for families or individuals. The open-concept kitchen, living, and dining areas create a seamless flow, ideal for entertaining guests or enjoying daily life with loved ones. The kitchen is a highlight of the home, featuring sleek silestone countertops and high-quality stainless steel appliances, which combine beauty with practicality. Equipped with the latest smart home technology, the Devon offers enhanced convenience and control. With just a few taps or voice commands, you can manage lighting, temperature, and security from anywhere, giving you peace of mind and energy efficiency. Whether you're cooking in the g...
Stay informed with Livabl updates on new community details and available inventory.