




























































































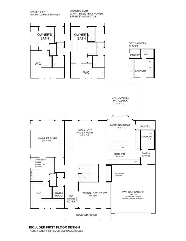
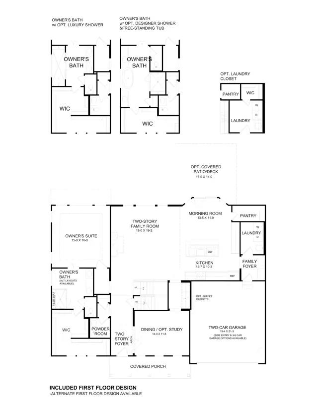
The Leland by Fischer Homes offers a spacious and elegant design, featuring a two-story foyer and family room with 9-foot ceilings on the first floor. The main level includes a primary suite, with options to add a morning or hearth room expansion for additional living space. Customize your home further with an optional study or guest suite. Upstairs, the included loft provides extra flexibility, and an optional fourth bedroom with a private bath adds convenience. The Leland combines style, comfort, and versatility, making it a perfect fit for modern living.
Stay informed with Livabl updates on new community details and available inventory.