





Get additional information including price lists and floor plans.
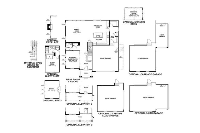
Welcome to the Temple, a brand new, 2-story floorplan by M/I Homes. This home comes with 4 bedrooms, a large loft, and plenty of options to make this house your home. Starting with the exterior, choose from one of the charming elevations for curb appeal that matches your style, such as the traditional, farmhouse, and craftsman. As you open the front door, notice the expansive foyer with a flex space off to the side that makes for a perfect formal dining room. Turn this space into a private home office or a guest suite with a full bathroom and closet for visiting family. Stroll back to the open-concept living area and notice the amount of natural light that pours in. The large family room is a great gathering space for game nights. Turn this space into a cozy room with a charming fireplace to watch movies.
Stay informed with Livabl updates on new community details and available inventory.