








































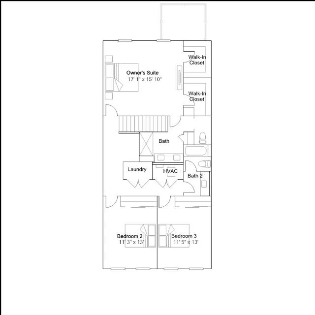
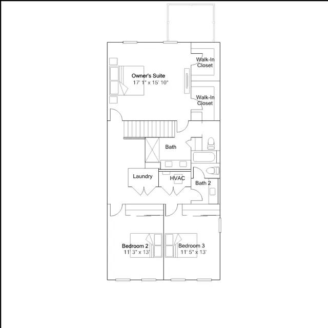
This new townhome design showcases a gracious open-plan layout on the main level to prioritize ease of living. It showcases a modern kitchen with a center island and a living room made for gathering, while a nearby deck expands the space for relaxing outdoor moments. On the upper level are two peaceful bedrooms located down the hallway from a large owners suite. Rounding out the home is a convenient lower-level garage.
Stay informed with Livabl updates on new community details and available inventory.