






















































Get additional information including price lists and floor plans.
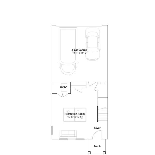
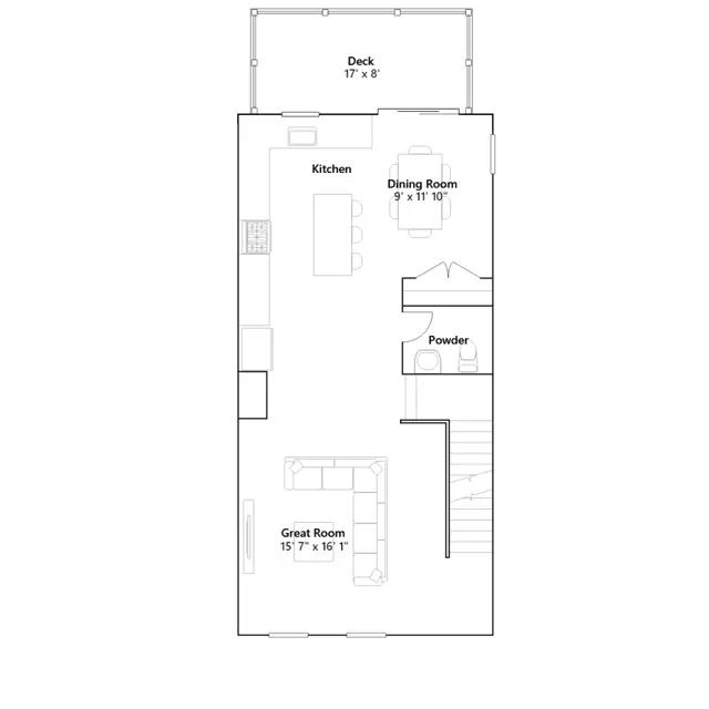
The first floor of this new townhome opens into a desirable recreation room ideal for entertainment. Upstairs is the free-flowing main living spaces, showcasing a spacious Great Room, modern kitchen and an airy dining room. Framing this level are an intimate balcony and a deck to enjoy seamless indoor-outdoor activities. Residing on the top floor are all three bedrooms to deliver maximum privacy, including the owners suite with an adjoining bathroom. An optimal two-car garage sits at the back of the home.
Stay informed with Livabl updates on new community details and available inventory.