



































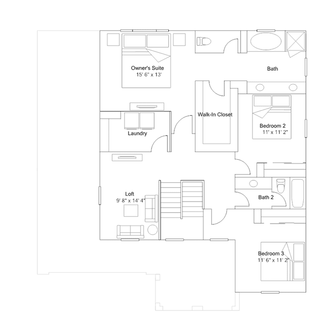
The first level of this two-story home is host to a generous open floorplan shared between the kitchen, dining room and family room, allowing for effortless multitasking. A bedroom off the entry is great for overnight guests, household members that need privacy or a home office. Upstairs, a versatile loft is surrounded by three more bedrooms, including the luxe owners suite with a spa-inspired bathroom and a walk-in closet.