
























Get additional information including price lists and floor plans.
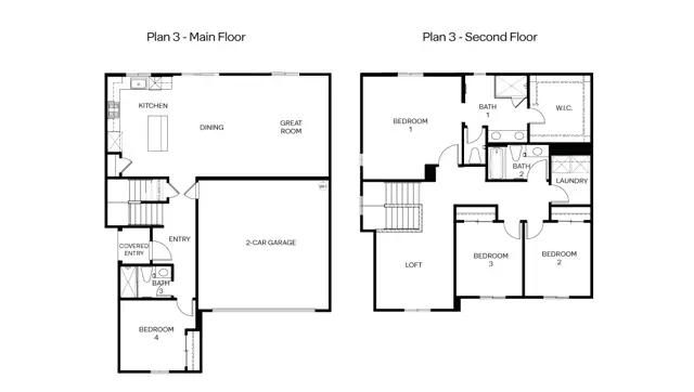
Live in style in this great home that offers a first-floor bedroom! This home features four bedrooms, three full baths and 2,096 square feet. Enter through the unique side entry and discover a spacious living area. The open-room concept features a large great room that flows effortlessly into a dining space and kitchen. The kitchen features a spacious island that gives you an extra seating area for eating or work. Take the two short flights upstairs and come upon a loft with plenty of windows for natural light. Across from the loft is a primary oasis with a large bedroom an oversized primary bath and a walk-in closet. Here you'll find great counter space with a double vanity, a walk-in shower, and a separate water closet. Down the hall, you'll find a linen closet, two secondary bedrooms, a secondary full bath with tub. A roomy two-car garage and under-t...
Stay informed with Livabl updates on new community details and available inventory.