


















































Images unavailable
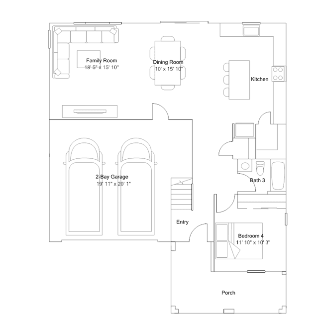
The family room, kitchen and dining room are arranged among a convenient and contemporary open floorplan on the first level of this two-story home, while a secondary bedroom is found just off the entry, ideal for overnight guests or a home office. Upstairs, a loft provides additional shared living space and three more bedrooms offer comfort and privacy. The owners suite is among the upstairs bedrooms, complete with an en-suite bathroom and a walk-in closet.