











































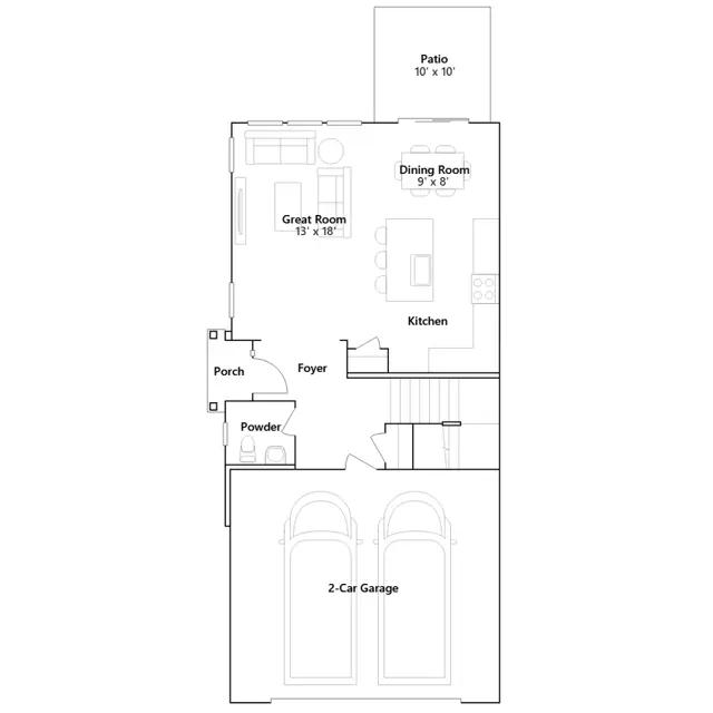
This new two-story townhome has an appealing contemporary design, with an airy, inviting first-floor Great Room, elegant dining room, modern kitchen and outdoor patio. A loft that adds shared living space and three bedrooms including the owners suite are situated on the second floor.
Stay informed with Livabl updates on new community details and available inventory.