
























































Get additional information including price lists and floor plans.

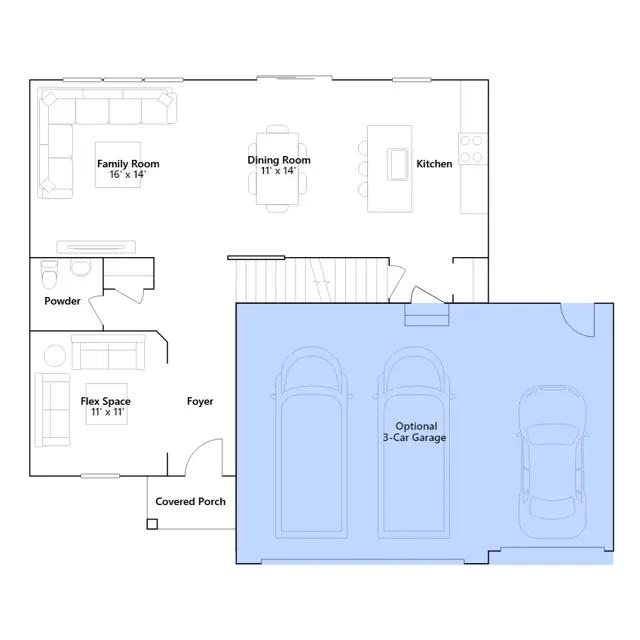
The first level of this two-story home is host to communal spaces, including a flex space off the foyer and an open floorplan shared among the family room, dining room and kitchen. A loft and three bedrooms can be found upstairs, two of which feature walk-in closets.
Stay informed with Livabl updates on new community details and available inventory.