hero-image-0
hero-image-1

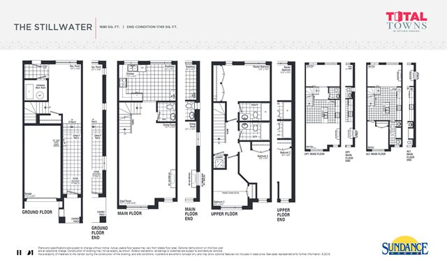
Stillwater Plan

Total Towns
Sold
Sold
2
2
1
From 1,680
unit-banner-imageunit-banner-imageunit-banner-image
Stillwater Plan details
Stillwater Plan is now sold.
Check out available nearby plans below.