











































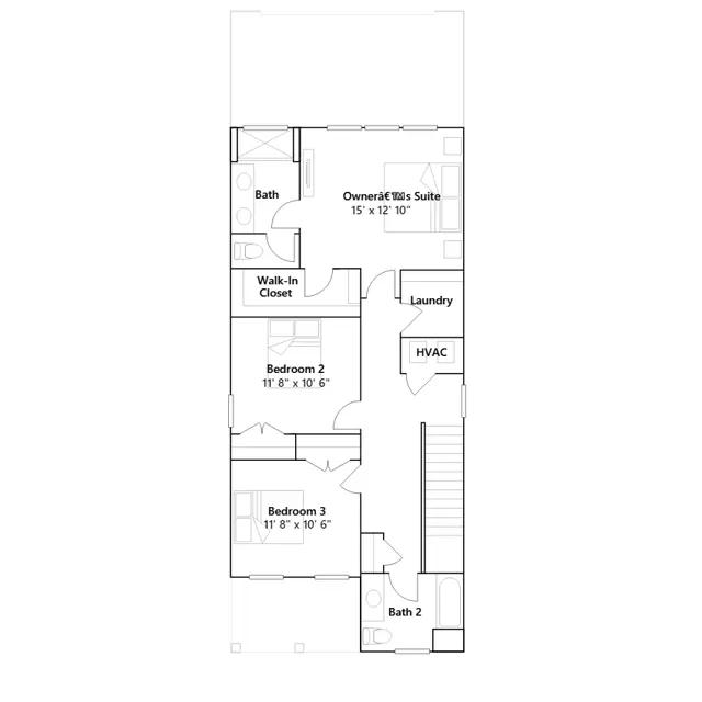
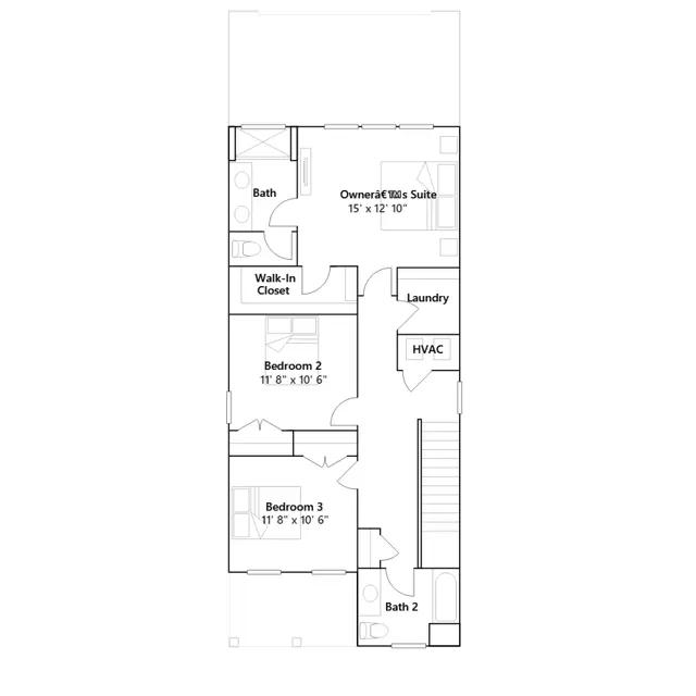
The Great Room and kitchen share a convenient open floorplan on the first floor of this two-story home, with sliding glass doors that lead to the lanai. All three bedrooms occupy the second level, including the owners suite which is comprised of a restful bedroom, en-suite bathroom and walk-in closet.
Stay informed with Livabl updates on new community details and available inventory.