




















Get additional information including price lists and floor plans.



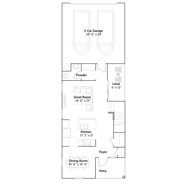
The Great Room, kitchen and dining room are situated among a convenient and contemporary open floorplan on the first level of this two-story home, with sliding glass doors that lead to a lanai. All three bedrooms occupy the second floor, including the owners suite which features an en-suite bathroom and walk-in closet.
Stay informed with Livabl updates on new community details and available inventory.