



















































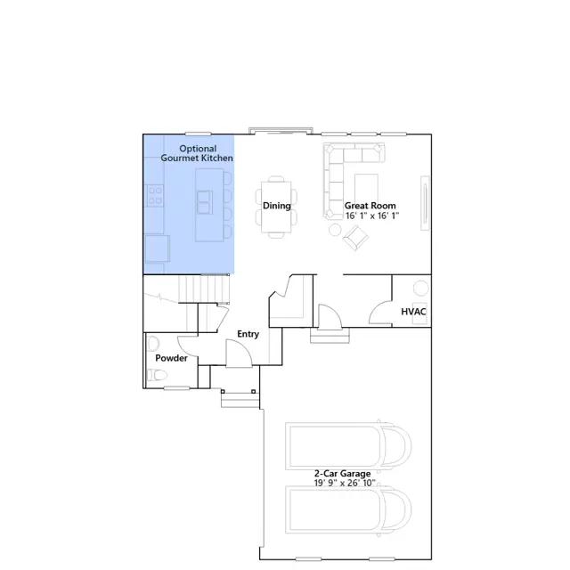
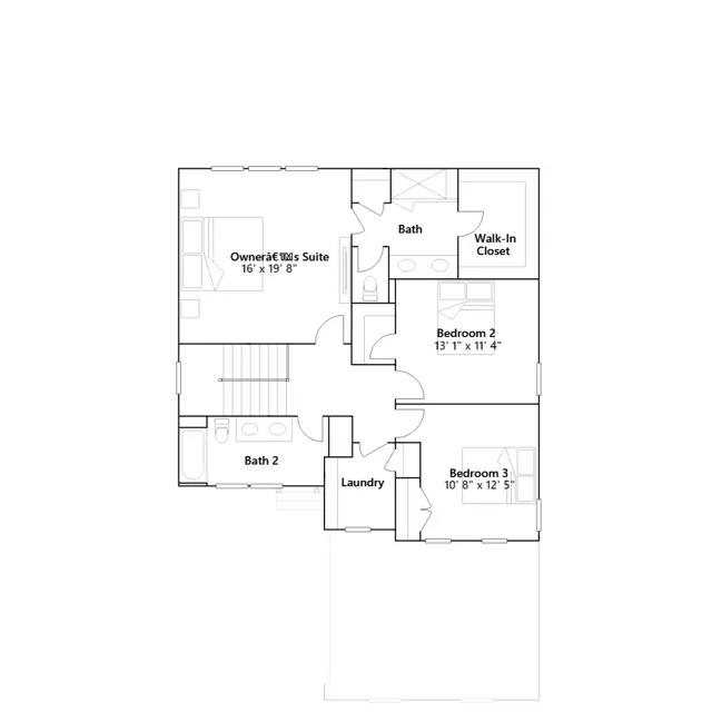
This new two-story home boasts an inviting open-concept layout on the first floor, with an unfinished basement offering enhanced versatility. Three bedrooms can be found upstairs, including the luxe owners suite, complete with a spa-inspired bathroom and generous walk-in closet. A two-bay garage completes the home.
Stay informed with Livabl updates on new community details and available inventory.