













































































Get additional information including price lists and floor plans.
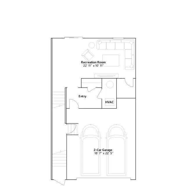
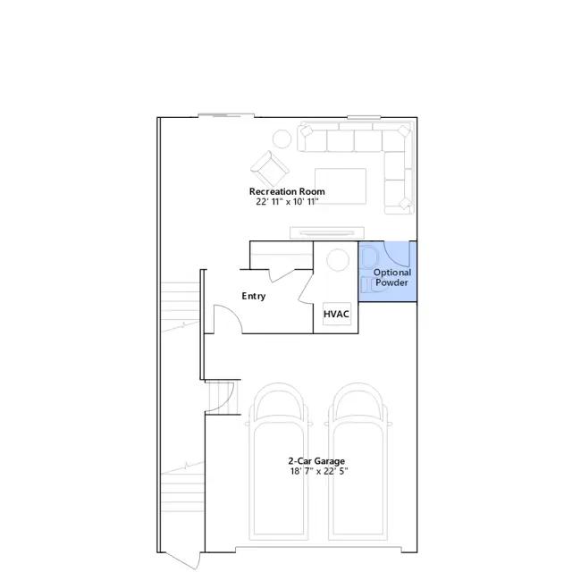
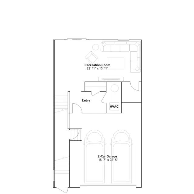
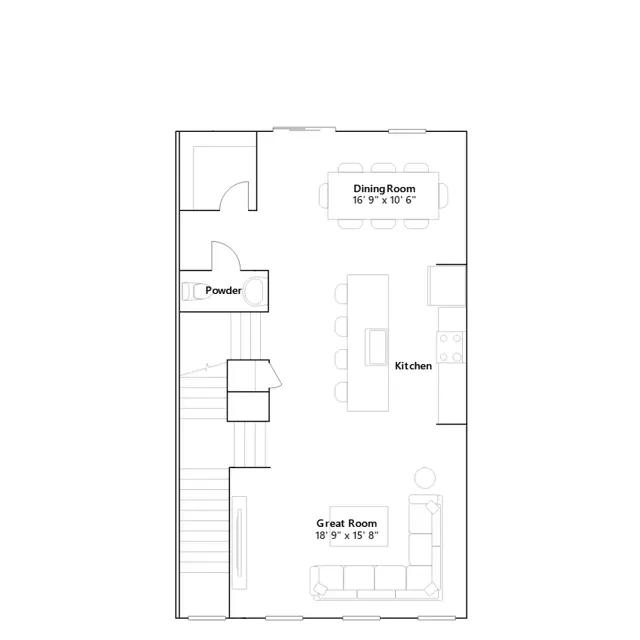
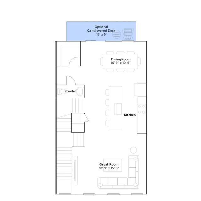
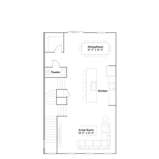
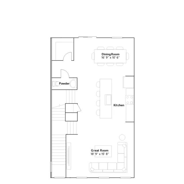
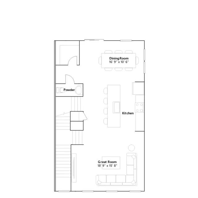
This new three-story townhome begins with a sprawling recreation room to fit versatile needs. Upstairs is the main level of the home, featuring a seamless open-plan layout connecting the Great Room, a fully equipped kitchen and a dining room with outdoor access. All three bedrooms are found on the uppermost floor to provide maximum privacy. The owners suite includes a spacious bedroom, bathroom and walk-in closet.
Stay informed with Livabl updates on new community details and available inventory.