



































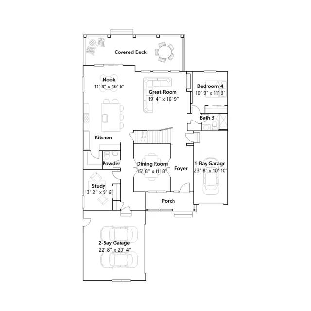
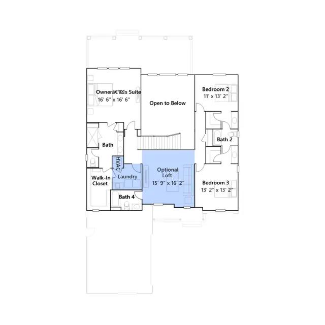
A spacious open floorplan found on the first level of this two-story home hosts the Great Room, kitchen and nook, while a formal dining room and outdoor space offer ample room for entertaining friends and family. The study is ideal for those who need a home office, and a bedroom suite provides a convenient space for overnight guests. Four more bedrooms occupy the second floor.
Stay informed with Livabl updates on new community details and available inventory.